91-3525 Kamalie Mua Street 19Ewa Beach, HI 96706




Mortgage Calculator
Monthly Payment (Est.)
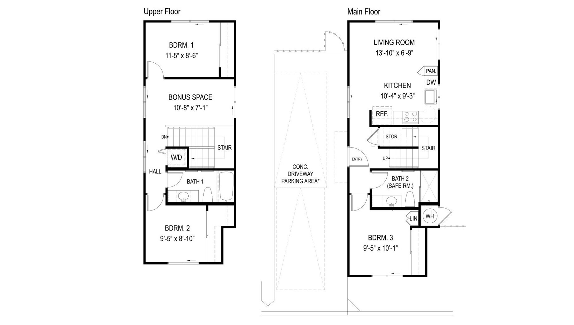
$3,428This two story 3-bedroom 2-bathroom detached single family home consists of 997 square feet of net living area and a fully fenced private back yard area. When you step into this home, you will be greeted by the kitchen featuring stainless steel appliances and white soft-close cabinets. The kitchen flows seamlessly into the living room, perfect for entertaining guests or relaxing after a busy day. Also on this floor is a primary bedroom with a walk-in shower and vanity. Upstairs, you will find a bonus room, perfect for a home office, game room, or play area. Also on this floor are two secondary bedrooms and a bathroom with a shower-tub combination to help complete the home. Whole house split air conditioning and modern appliances including a range/oven, micro-hood, dishwasher, refrigerator, and washer/dryer allow for ease of living. Estimated completion date May 2026.
| 5 days ago | Status changed to Pending | |
| 6 days ago | Listing updated with changes from the MLS® | |
| a week ago | Listing first seen on site |
Based on information from the Multiple Listing Service of HiCentral MLS, Ltd. Information is deemed reliable but not guaranteed. Copyright © 2017-present by HiCentral MLS, Ltd.
Did you know? You can invite friends and family to your search. They can join your search, rate and discuss listings with you.